Центр Екатеринбурга

ЖК Гоголя, 21

Площадь 1905 года, 15 минут пешком

 
площадь

от 57 м.кв

 
завершение

III кв.2028

 
стоимость

от 23590000 руб.

Дом, попавший Екатеринбургу в сердце

Гоголя 21 — это новое понимание роскоши

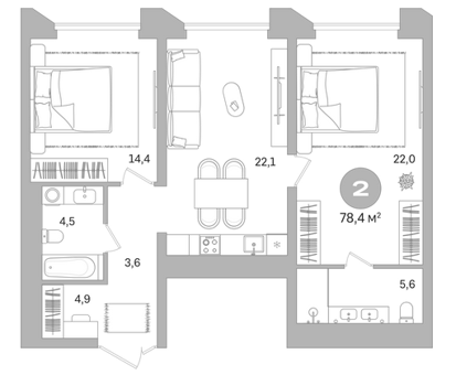
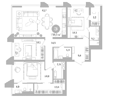
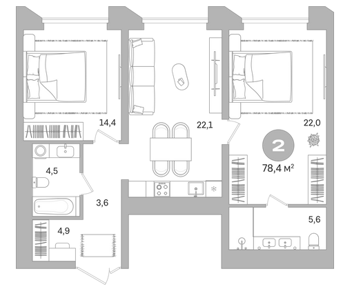
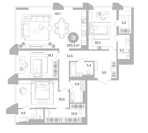
ТИПОВЫЕ ПЛАНИРОВКИ ОБЪЕКТОВ

1-комнатные

Площадь от 55.6 м2

от 28.530.000 руб

2-комнатные

Площадь от 78.4 м2

от 30.660.000 руб

3-комнатные

Площадь от 149.9 м2

от 59.710.000 руб

ЖК Гоголя, 21 ЭТО

Комплекс состоит из 2 башен высотой 21 и 25 этажей, объединенных 4-этажной галереей. Архитектура отличается современным стилем и продуманной структурой внутренних пространств. В доме предусмотрены пассажирские и грузовые лифты, кладовые, колясочные и просторные лобби.

Здесь чисто, светло и уютно: стены украшают картины, а технические элементы скрыты за декоративными панелями.Жители дома могут свободно перемещаться между этажами, а гостям по ключ-карте откроется доступ только на один конкретный этаж. В каждой башне по два бесшумных скоростных лифта КOYO. Чтобы запустить лифт, потребуется электронный ключ — такой будет у жителей, а гости смогут получить его на ресепшн.

Как бы вы ни распланировали квартиру, панорамные окна с низкими подоконниками впустят в неё максимум света. Мокрые зоны и служебные помещения спроектированы ближе ко входу, чтобы оставить больше солнца спальням и гостиным. На верхних этажах — пентхаусы площадью более 600 м² с мастер-спальнями, террасами и видами на 360 градусов.Высота потолков: на типовых этажах — 3 метра, в пентхаусах — 3.3 метра
240 см высота входных дверей — с двумя створками разной ширины и «умной ручкой»

Жилой комплекс находится в центре Екатеринбурга


  • В доме предусмотрен шестиуровневый паркинг с въездом со стороны улицы Энгельса: три уровня находятся под землёй, а три скрыты в первых этажах.179 автомобилей помещаются на шести уровнях паркинга.В уровне паркинга предусмотрены помещения для хранения колясок, снегокатов, санок и велосипедов.

  • Жителям города доступен только первый этаж — гостеприимное лобби, кофе-пойнт и цветочный корнер, ресторан и салон красоты. Всё, что выше, — клубное пространство, где комфортно отдыхать после рабочего дня, заниматься неотложными делами и встречаться с друзьями

ОНЛАЙН КОНСУЛЬТАЦИЯ

получите больше информации о проекте
и задайте свои вопросы

НЕ НАШЛИ ПОДХОДЯЩЕЕ?

Укажите параметры недвижимости, и мы подберем варианты в течение дня бесплатно

Пожалуйста, укажите телефон
Согласен с политикой конфиденциальности
Необходимо согласие
Написать в мессенджер